

MITO CIVIC CENTRE
モータリゼーションが成熟していく一方で地方都市のドーナツ化現象が進む。衰退していく中心市街地の活性化を願う気持ちとは裏腹に敷地周辺の通りは手入れの効率化を優先し木々は寂しくも極端に短く剪定され緑も少ない。敷地は水戸芸術館と市内唯一の百貨店に挟まれる。双方の間を機能的に繋げるとともに、各種コンサートや公演、さらにコンベンション等のエンターテイメント性の強い非日常と市民が常に気軽に利用できる公共性の高い日常の2極性質をドラマ性を持って周辺一体と融合することを目指した。
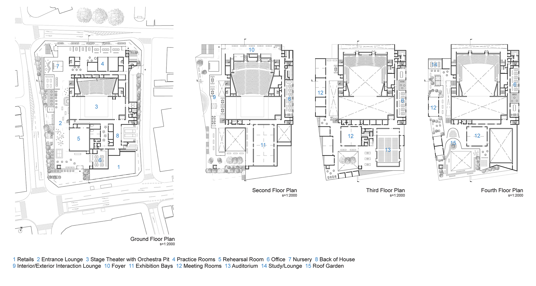
- Many suburban cities in Japan gradually advance doughnut phenomenon as motorization progresses. As result of prioritizing efficiency, Mito City lost trees that help enrich city environment and rejuvenation of downtown became an urgent matter. Site locates in between Mito Contemporary Art Center and city’s only department store. This project was not only to connect two facilities, but also to conduct opposite experiences; extraordinary entertainment events of concerts and conventions, and public use of day-to-day activities.
Main Use: Complex Mixed-use Facility
Total Floor Area: 18,911㎡
Location: Ibaraki




